Η πολιτική του δήμου Αθηναίων για τα σχολεία είναι πλέον εγκληματική. Σχεδιάζει και υλοποιεί “φυλακές” για τα μικρά παιδιά είτε σε κοντέϊνερ είτε μέσα σε υπάρχουσες αίθουσες ή διαδρόμους δημοτικών σχολείων που τις “σπάει” για να χωρέσουν 60 και πλέον παιδάκια! Την ίδια ώρα υπάρχουν οικόπεδα και χώροι της ΚΤΥΠ χαρακτηρισμένοι για σχολεία αλλά η δημοτική αρχή δεν διανοείται να απαιτήσει να χτιστούν καινούργια σχολεία και νηπιαγωγεία. Χαρακτηριστική είναι η περίπτωση για το 130ο νηπιαγωγείο στην Ακαδημία Πλάτωνα. Το 2010-2011 ο χώρος που ανήκε στην πρώην Νομαρχία Αττικής (επί Σγουρού) κερδήθηκε με αγώνες κατοίκων και γονιών για να γίνει νηπιαγωγείο. Εγινε ο αρχιτεκτονικός διαγωνισμός για ΔΥΟ βιοκλιματικά νηπιαγωγεία, εκδόθηκε οικοδομική άδεια, έγιναν σχέδια για πάρκινγκ. Κι όμως τα νηπιαγωγεία δεν έγιναν (με τεράστια ευθύνη των στελεχών επί κυβέρνησης ΣΥΡΙΖΑ που εγκατέλειψαν το σχέδιο και πρόδωσαν όλους τους αγώνες των κατοίκων).

Τώρα 12 χρόνια μετά κι ενώ υπάρχει το οικόπεδο δίπλα στο 60ο δημοτικό σχολείο, η δημοτική αρχή Μπακογιάννη φέρνει στο δημοτικό συμβούλιο σήμερα Τρίτη την αποκοπή ολίγων τετραγωνικών μέτρων από την αίθουσα εκδηλώσεων του 60ου δημοτικού σχολείου για να γίνει σε ένα κομμάτι της, νηπιαγωγείο! Κι αυτό γιατί δεν χωράνε όλα τα παιδάκια, προνήπια και νήπια στο 130ο Νηπιαγωγείο. Τα σχέδια που εγκρίθηκαν και πηγαίνουν προς έγκριση στο δημοτικό συμβούλιο είναι τρομακτικά! Η αίθουσα εκδηλώσεων του δημοτικού στην οποία γίνεται ήδη η σίτιση των παιδιών στο ολοήμερο και οι κάθε είδους εκδηλώσεις- σήμερα για παράδειγμα είναι γεμάτη με βιβλία για την επόμενη χρονιά- θα χωριστεί. Σχεδόν 15 τετραγωνικά θα δοθούν για το νέο “νηπιαγωγείο”. Μια φυλακή ακόμη για τα νήπια αφού ήδη το 130ο νηπιαγωγείο μοιάζει σαν φυλακή, με τη μία αίθουσα του στον διάδρομο!
Αξίζει να σημειωθεί πως ο Σύλλογος Γονέων του 60ου δημοτικού έχει διαφωνήσει, έχει ζητήσει να γίνει νέο νηπιαγωγείο. Μέχρι και σήμερα όμως δεν έγινε κάποια κινητοποίηση από τους γονείς ή την Ένωση Γονέων και Κηδεμόνων της 4ης δημοτικής κοινότητας. Το θέμα έθεσε στο δημοτικό συμβούλιο δυο φορές έως τώρα η παράταξη της Αντικαπιταλιστικής Ανατροπής στην Αθήνα χωρίς να πάρει καμία απάντηση από τη δημοτική αρχή Μπακογιάννη. (δέστε εδώ και εδώ αναλυτικά).
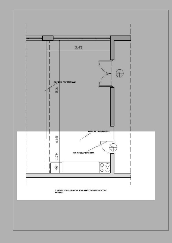
Όπως διαβάζουμε στις εισηγήσεις και τα έγγραφα: <<Στο 60ο Δημοτικό Σχολείο Αθηνών στεγάζεται στο σχολικό κτίριο επί των οδών Αίμονος και Τηλεφάνους και σε τμήμα του ισογείου του στεγάζεται επίσης το 130ο Νηπιαγωγείο Αθηνών. Ο χώρος που μας υποδείχθηκε για τη δημιουργία νέας αίθουσας είναι τμήμα της αίθουσας πολλαπλών χρήσεων του Δημοτικού σχολείου. Η ΑΠΦ βρίσκεται και αυτή στο ισόγειο του κτιρίου και είναι παρακείμενη του νηπιαγωγείου. Κατά την αυτοψία διαπιστώθηκε ότι είναι δυνατή η διαμόρφωση τμήματος αυτής σε ξεχωριστή αίθουσα χωρίς να επηρεαστεί η λειτουργία της ΑΠΦ. Σο τμήμα αυτό βρίσκεται αντιδιαμετρικά της σκηνής της αίθουσας και ήδη χρησιμοποιείται ,εν μέρει, ως χώρος αποθήκευσης- προετοιμασίας φαγητού για το ολοήμερο σχολείο, αλλά και το ζέσταμα των γευμάτων του νηπιαγωγείο.



Μιὰ σκέψη πάνω στὸ “Η αίθουσα εκδηλώσεων στο 60ο δημοτικό γίνεται Νηπιαγωγείο 16 τ.μ!”